Готовая мобильная баня из бруса или каркаса за 7 дней без предоплаты с доставкой и установкой
работаем по всей России
Собственное производство
мобильных бань (можно приехать)
мобильных бань (можно приехать)
БЕЗ ПРЕДОПАЛАТЫ. Оплата после
доставки и установки бани
доставки и установки бани
Доставим ГОТОВУЮ или СОБЕРЕМ У ВАС НА УЧАСТКЕ
Гарантия 2 года! Цена, комплектация
и сроки фиксированы в договоре
и сроки фиксированы в договоре
Строим в теплый угол.
Брус КАМЕРНОЙ СУШКИ (северный лес) 100х150мм, 150х150мм
Брус КАМЕРНОЙ СУШКИ (северный лес) 100х150мм, 150х150мм
Утепление пола и потолка
100мм, 150мм
100мм, 150мм
Готовая баня за 7 дней.
Установка за 1 час
Установка за 1 час
В готовой бане можно
париться сразу после установки
париться сразу после установки
Рассчитайте стоимость вашей бани под ключ
Каталог готовых бань
Возможны любые изменения в любом проекте, который размещен на сайте. Также вы можете прислать нам ваш план или проект.
Мобильная баня 3 х 2,3 м
Мобильная баня 3 х 2,3 м
от 239 000 руб
с доставкой и установкой
за 7-10 дней без предоплаты
с гарантией 2 года
Без предоплаты
100% оплата бани после доставки и установки (рассрочки нет)
100% оплата бани после доставки и установки (рассрочки нет)
Гарантия 2 года
прописана в договоре
прописана в договоре
Через 7-10 дней
баня будет у вас на участке
баня будет у вас на участке
Доставим готовую баню или соберём у вас на участке
В бане уже будет все необходимое для парения:
печь, камни, бак для нагрева воды, полки, стол и лавочки. Вам нужно только ее затопить.
печь, камни, бак для нагрева воды, полки, стол и лавочки. Вам нужно только ее затопить.
Любую баню можно изменить по вашему пожеланию
Можно изменить вход, размер или назначение помещений. Можно добавить козырек, крыльцо, хозпомещение.
Можно изменить вход, размер или назначение помещений. Можно добавить козырек, крыльцо, хозпомещение.
Материал: брус или каркас (на выбор)
Брус или каркас КАМЕРНОЙ СУШКИ
Размер бруса: 100х150 мм или 150х150 мм
Толщина каркаса: 100 мм или 150 мм
Помещений: 2 (парная, раздевалка)
описание и комплектация
Мобильная баня 3 х 2,3 м
Мобильная баня 3 х 2,3 м с крыльцом
от 250 500 руб
с доставкой и установкой
за 7-10 дней без предоплаты
с гарантией 2 года
Без предоплаты
100% оплата бани после доставки и установки (рассрочки нет)
100% оплата бани после доставки и установки (рассрочки нет)
Гарантия 2 года
прописана в договоре
прописана в договоре
Через 7-10 дней
баня будет у вас на участке
баня будет у вас на участке
Доставим готовую баню или соберём у вас на участке
В бане уже будет все необходимое для парения:
печь, камни, бак для нагрева воды, полки, стол и лавочки. Вам нужно только ее затопить.
печь, камни, бак для нагрева воды, полки, стол и лавочки. Вам нужно только ее затопить.
Любую баню можно изменить по вашему пожеланию
Можно изменить вход, размер или назначение помещений. Можно добавить козырек, крыльцо, хозпомещение.
Можно изменить вход, размер или назначение помещений. Можно добавить козырек, крыльцо, хозпомещение.
Материал: брус или каркас (на выбор)
Брус или каркас КАМЕРНОЙ СУШКИ
Размер бруса: 100х150 мм или 150х150 мм
Толщина каркаса: 100 мм или 150 мм
Помещений: 2 (парная, раздевалка)
описание и комплектация
Мобильная баня 4 х 2,3 м
Мобильная баня 4 х 2,3 м
от 288 000 руб
с доставкой и установкой
за 7-10 дней без предоплаты
с гарантией 2 года
Без предоплаты
100% оплата бани после доставки и установки (рассрочки нет)
100% оплата бани после доставки и установки (рассрочки нет)
Гарантия 2 года
прописана в договоре
прописана в договоре
Через 7-10 дней
баня будет у вас на участке
баня будет у вас на участке
Доставим готовую баню или соберём у вас на участке
В бане уже будет все необходимое для парения:
печь, камни, бак для нагрева воды, полки, стол и лавочки. Вам нужно только ее затопить.
печь, камни, бак для нагрева воды, полки, стол и лавочки. Вам нужно только ее затопить.
Любую баню можно изменить по вашему пожеланию
Можно изменить вход, размер или назначение помещений. Можно добавить козырек, крыльцо, хозпомещение.
Можно изменить вход, размер или назначение помещений. Можно добавить козырек, крыльцо, хозпомещение.
Материал: брус или каркас (на выбор)
Брус или каркас КАМЕРНОЙ СУШКИ
Размер бруса: 100х150 мм или 150х150 мм
Толщина каркаса: 100 мм или 150 мм
Помещений: 2 (парная, комната отдыха)
описание и комплектация
Мобильная баня 4 х 2,3 м с крыльцом
Мобильная баня 4 х 2,3 м с крыльцом
от 299 500 руб
с доставкой и установкой
за 7-10 дней без предоплаты
с гарантией 2 года
Без предоплаты
100% оплата бани после доставки и установки (рассрочки нет)
100% оплата бани после доставки и установки (рассрочки нет)
Гарантия 2 года
прописана в договоре
прописана в договоре
Через 7-10 дней
баня будет у вас на участке
баня будет у вас на участке
Доставим готовую баню или соберём у вас на участке
В бане уже будет все необходимое для парения:
печь, камни, бак для нагрева воды, полки, стол и лавочки. Вам нужно только ее затопить.
печь, камни, бак для нагрева воды, полки, стол и лавочки. Вам нужно только ее затопить.
Любую баню можно изменить по вашему пожеланию
Можно изменить вход, размер или назначение помещений. Можно добавить козырек, крыльцо, хозпомещение.
Можно изменить вход, размер или назначение помещений. Можно добавить козырек, крыльцо, хозпомещение.
Материал: брус или каркас (на выбор)
Брус или каркас КАМЕРНОЙ СУШКИ
Размер бруса: 100х150 мм или 150х150 мм
Толщина каркаса: 100 мм или 150 мм
Помещений: 2 (парная, комната отдыха)
описание и комплектация
Мобильная баня 5 х 2,3 м
Мобильная баня 5 х 2,3 м
от 310 000 руб
с доставкой и установкой
за 7-10 дней без предоплаты
с гарантией 2 года
Без предоплаты
100% оплата бани после доставки и установки (рассрочки нет)
100% оплата бани после доставки и установки (рассрочки нет)
Гарантия 2 года
прописана в договоре
прописана в договоре
Через 7-10 дней
баня будет у вас на участке
баня будет у вас на участке
Доставим готовую баню или соберём у вас на участке
В бане уже будет все необходимое для парения:
печь, камни, бак для нагрева воды, полки, стол и лавочки. Вам нужно только ее затопить.
печь, камни, бак для нагрева воды, полки, стол и лавочки. Вам нужно только ее затопить.
Любую баню можно изменить по вашему пожеланию
Можно изменить вход, размер или назначение помещений. Можно добавить козырек, крыльцо, хозпомещение.
Можно изменить вход, размер или назначение помещений. Можно добавить козырек, крыльцо, хозпомещение.
Материал: брус или каркас (на выбор)
Брус или каркас КАМЕРНОЙ СУШКИ
Размер бруса: 100х150 мм или 150х150 мм
Толщина каркаса: 100 мм или 150 мм
Помещений: 2 (парная, комната отдыха), можно добавить моечную
описание и комплектация
Мобильная баня 5 х 2,3 м с крыльцом
Мобильная баня 5 х 2,3 м с крыльцом
от 321 500 руб
с доставкой и установкой
за 7-10 дней без предоплаты
с гарантией 2 года
Без предоплаты
100% оплата бани после доставки и установки (рассрочки нет)
100% оплата бани после доставки и установки (рассрочки нет)
Гарантия 2 года
прописана в договоре
прописана в договоре
Через 7-10 дней
баня будет у вас на участке
баня будет у вас на участке
Доставим готовую баню или соберём у вас на участке
В бане уже будет все необходимое для парения:
печь, камни, бак для нагрева воды, полки, стол и лавочки. Вам нужно только ее затопить.
печь, камни, бак для нагрева воды, полки, стол и лавочки. Вам нужно только ее затопить.
Любую баню можно изменить по вашему пожеланию
Можно изменить вход, размер или назначение помещений. Можно добавить козырек, крыльцо, хозпомещение.
Можно изменить вход, размер или назначение помещений. Можно добавить козырек, крыльцо, хозпомещение.
Материал: брус или каркас (на выбор)
Брус или каркас КАМЕРНОЙ СУШКИ
Размер бруса: 100х150 мм или 150х150 мм
Толщина каркаса: 100 мм или 150 мм
Помещений: 2 (парная, комната отдыха), можно добавить моечную
описание и комплектация
Мобильная баня 6 х 2,3 м
Мобильная баня 6 х 2,3 м
от 333 000 руб
с доставкой и установкой
за 7-10 дней без предоплаты
с гарантией 2 года
Без предоплаты
100% оплата бани после доставки и установки (рассрочки нет)
100% оплата бани после доставки и установки (рассрочки нет)
Гарантия 2 года
прописана в договоре
прописана в договоре
Через 7-10 дней
баня будет у вас на участке
баня будет у вас на участке
Доставим готовую баню или соберём у вас на участке
В бане уже будет все необходимое для парения:
печь, камни, бак для нагрева воды, полки, стол и лавочки. Вам нужно только ее затопить.
печь, камни, бак для нагрева воды, полки, стол и лавочки. Вам нужно только ее затопить.
Любую баню можно изменить по вашему пожеланию
Можно изменить вход, размер или назначение помещений. Можно добавить козырек, крыльцо, хозпомещение.
Можно изменить вход, размер или назначение помещений. Можно добавить козырек, крыльцо, хозпомещение.
Материал: брус или каркас (на выбор)
Брус или каркас КАМЕРНОЙ СУШКИ
Размер бруса: 100х150 мм или 150х150 мм
Толщина каркаса: 100 мм или 150 мм
Помещений: 3 (парная, комната отдыха, моечная)
описание и комплектация
Мобильная баня 6 х 2,3 м с крыльцом
Мобильная баня 6 х 2,3 м с крыльцом
от 344 500 руб
с доставкой и установкой
за 7-10 дней без предоплаты
с гарантией 2 года
Без предоплаты
100% оплата бани после доставки и установки (рассрочки нет)
100% оплата бани после доставки и установки (рассрочки нет)
Гарантия 2 года
прописана в договоре
прописана в договоре
Через 7-10 дней
баня будет у вас на участке
баня будет у вас на участке
Доставим готовую баню или соберём у вас на участке
В бане уже будет все необходимое для парения:
печь, камни, бак для нагрева воды, полки, стол и лавочки. Вам нужно только ее затопить.
печь, камни, бак для нагрева воды, полки, стол и лавочки. Вам нужно только ее затопить.
Любую баню можно изменить по вашему пожеланию
Можно изменить вход, размер или назначение помещений. Можно добавить козырек, крыльцо, хозпомещение.
Можно изменить вход, размер или назначение помещений. Можно добавить козырек, крыльцо, хозпомещение.
Материал: брус или каркас (на выбор)
Брус или каркас КАМЕРНОЙ СУШКИ
Размер бруса: 100х150 мм или 150х150 мм
Толщина каркаса: 100 мм или 150 мм
Помещений: 3 (парная, комната отдыха, моечная)
описание и комплектация
Мобильная баня 7 х 2,3 м
Мобильная баня 7 х 2,3 м
от 355 000 руб
с доставкой и установкой
за 7-10 дней без предоплаты
с гарантией 2 года
Без предоплаты
100% оплата бани после доставки и установки (рассрочки нет)
100% оплата бани после доставки и установки (рассрочки нет)
Гарантия 2 года
прописана в договоре
прописана в договоре
Через 7-10 дней
баня будет у вас на участке
баня будет у вас на участке
Доставим готовую баню или соберём у вас на участке
В бане уже будет все необходимое для парения:
печь, камни, бак для нагрева воды, полки, стол и лавочки. Вам нужно только ее затопить.
печь, камни, бак для нагрева воды, полки, стол и лавочки. Вам нужно только ее затопить.
Любую баню можно изменить по вашему пожеланию
Можно изменить вход, размер или назначение помещений. Можно добавить козырек, крыльцо, хозпомещение.
Можно изменить вход, размер или назначение помещений. Можно добавить козырек, крыльцо, хозпомещение.
Материал: брус или каркас (на выбор)
Брус или каркас КАМЕРНОЙ СУШКИ
Размер бруса: 100х150 мм или 150х150 мм
Толщина каркаса: 100 мм или 150 мм
Помещений: 3 (парная, комната отдыха, моечная)
описание и комплектация
Мобильная баня 7 х 2,3 м с крыльцом
Мобильная баня 7 х 2,3 м с крыльцом
от 366 500 руб
с доставкой и установкой
за 7-10 дней без предоплаты
с гарантией 2 года
Без предоплаты
100% оплата бани после доставки и установки (рассрочки нет)
100% оплата бани после доставки и установки (рассрочки нет)
Гарантия 2 года
прописана в договоре
прописана в договоре
Через 7-10 дней
баня будет у вас на участке
баня будет у вас на участке
Доставим готовую баню или соберём у вас на участке
В бане уже будет все необходимое для парения:
печь, камни, бак для нагрева воды, полки, стол и лавочки. Вам нужно только ее затопить.
печь, камни, бак для нагрева воды, полки, стол и лавочки. Вам нужно только ее затопить.
Любую баню можно изменить по вашему пожеланию
Можно изменить вход, размер или назначение помещений. Можно добавить козырек, крыльцо, хозпомещение.
Можно изменить вход, размер или назначение помещений. Можно добавить козырек, крыльцо, хозпомещение.
Материал: брус или каркас (на выбор)
Брус или каркас КАМЕРНОЙ СУШКИ
Размер бруса: 100х150 мм или 150х150 мм
Толщина каркаса: 100 мм или 150 мм
Помещений: 3 (парная, комната отдыха, моечная)
описание и комплектация
Мобильные бани с террасой
Баня доставляется готовой на ваш участок
Баня с террасой 5 или 6 метров
Баня с террасой 5 или 6 метров
от 239 000 руб
с доставкой и установкой
за 7-10 дней без предоплаты
с гарантией 2 года
Без предоплаты
100% оплата бани после доставки и установки (рассрочки нет)
100% оплата бани после доставки и установки (рассрочки нет)
Гарантия 2 года
прописана в договоре
прописана в договоре
Через 7-10 дней
баня будет у вас на участке
баня будет у вас на участке
Доставим готовую баню или соберём у вас на участке
В бане уже будет все необходимое для парения:
печь, камни, бак для нагрева воды, полки, стол и лавочки. Вам нужно только ее затопить.
печь, камни, бак для нагрева воды, полки, стол и лавочки. Вам нужно только ее затопить.
Любую баню можно изменить по вашему пожеланию
Можно изменить вход, размер или назначение помещений. Можно добавить козырек, крыльцо, хозпомещение.
Можно изменить вход, размер или назначение помещений. Можно добавить козырек, крыльцо, хозпомещение.
Материал: брус или каркас (на выбор)
Брус или каркас КАМЕРНОЙ СУШКИ
Размер бруса: 100х150 мм или 150х150 мм
Толщина каркаса: 100 мм или 150 мм
Помещений: 2 или 3 помещения (парная, моечная, комната отдыха)
описание и комплектация
Баня с террасой 5 или 6 метров
Баня с террасой 5 или 6 метров
от 239 000 руб
с доставкой и установкой
за 7-10 дней без предоплаты
с гарантией 2 года
Без предоплаты
100% оплата бани после доставки и установки (рассрочки нет)
100% оплата бани после доставки и установки (рассрочки нет)
Гарантия 2 года
прописана в договоре
прописана в договоре
Через 7-10 дней
баня будет у вас на участке
баня будет у вас на участке
Доставим готовую баню или соберём у вас на участке
В бане уже будет все необходимое для парения:
печь, камни, бак для нагрева воды, полки, стол и лавочки. Вам нужно только ее затопить.
печь, камни, бак для нагрева воды, полки, стол и лавочки. Вам нужно только ее затопить.
Любую баню можно изменить по вашему пожеланию
Можно изменить вход, размер или назначение помещений. Можно добавить козырек, крыльцо, хозпомещение.
Можно изменить вход, размер или назначение помещений. Можно добавить козырек, крыльцо, хозпомещение.
Материал: брус или каркас (на выбор)
Брус или каркас КАМЕРНОЙ СУШКИ
Размер бруса: 100х150 мм или 150х150 мм
Толщина каркаса: 100 мм или 150 мм
Помещений: 2 или 3 помещения (парная, моечная, комната отдыха)
описание и комплектация
Баня с террасой 5 или 6 метров
Баня с террасой 5 или 6 метров
от 239 000 руб
с доставкой и установкой
за 7-10 дней без предоплаты
с гарантией 2 года
Без предоплаты
100% оплата бани после доставки и установки (рассрочки нет)
100% оплата бани после доставки и установки (рассрочки нет)
Гарантия 2 года
прописана в договоре
прописана в договоре
Через 7-10 дней
баня будет у вас на участке
баня будет у вас на участке
Доставим готовую баню или соберём у вас на участке
В бане уже будет все необходимое для парения:
печь, камни, бак для нагрева воды, полки, стол и лавочки. Вам нужно только ее затопить.
печь, камни, бак для нагрева воды, полки, стол и лавочки. Вам нужно только ее затопить.
Любую баню можно изменить по вашему пожеланию
Можно изменить вход, размер или назначение помещений. Можно добавить козырек, крыльцо, хозпомещение.
Можно изменить вход, размер или назначение помещений. Можно добавить козырек, крыльцо, хозпомещение.
Материал: брус или каркас (на выбор)
Брус или каркас КАМЕРНОЙ СУШКИ
Размер бруса: 100х150 мм или 150х150 мм
Толщина каркаса: 100 мм или 150 мм
Помещений: 2 или 3 помещения (парная, моечная, комната отдыха)
описание и комплектация
Каталог бань со строительством на участке
Возможны любые изменения в любом проекте, который размещен на сайте. Также вы можете прислать нам ваш план или проект. Любую баню можно сделать из бруса или по каркасной технологии.
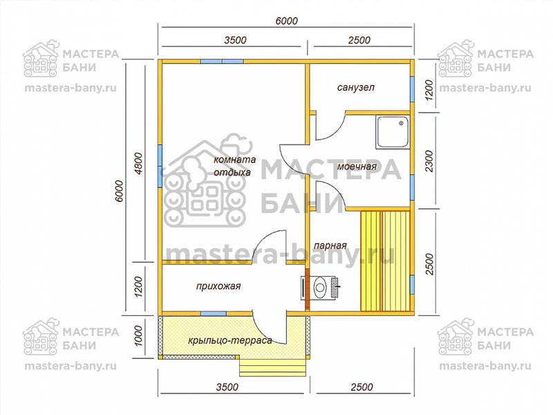
Баня-1 «Ольга» 3 х 4 м
Баня-1 «Ольга» 3 х 4 м
от 300 000 руб
срок постройки от 4-х дней
срок постройки от 4-х дней
Эта баня строится нашей бригадой у вас на участке
Любую баню можно изменить по вашему пожелнию
Можно изменить вход, расположене окон и дверей, размер или назначение помещений.
Можно изменить вход, расположене окон и дверей, размер или назначение помещений.
Материал на выбор: брус или каркас
Толщина стен и утепление: 100мм или 150мм
Строим: под ключ или под усадку
Наружные габариты Д х Ш: 3 х 4 м
Парная: 2 х 2 м
Помещений: 3 (парная / моечная / комната отдыха)
описание и комплектация
Баня-2 «София» 4 х 4 м
Баня-2 «София» 4 х 4 м
от 345 000 руб
срок постройки от 4-х дней
срок постройки от 4-х дней
Эта баня строится нашей бригадой у вас на участке
Любую баню можно изменить по вашему пожелнию
Можно изменить вход, расположене окон и дверей, размер или назначение помещений.
Можно изменить вход, расположене окон и дверей, размер или назначение помещений.
Материал на выбор: брус или каркас
Толщина стен и утепление: 100мм или 150мм
Строим: под ключ или под усадку
Наружные габариты Д х Ш: 4 х 4 м
Парная: 2 х 2 м
Помещений: 3 (парная / моечная / комната отдыха)
описание и комплектация
Баня-3 «Анна» 4 х 5 м
Баня-3 «Анна» 4 х 5 м
от 380 000 руб
срок постройки от 5-ти дней
срок постройки от 5-ти дней
Эта баня строится нашей бригадой у вас на участке
Любую баню можно изменить по вашему пожелнию
Можно изменить вход, расположене окон и дверей, размер или назначение помещений.
Можно изменить вход, расположене окон и дверей, размер или назначение помещений.
Материал на выбор: брус или каркас
Толщина стен и утепление: 100мм или 150мм
Строим: под ключ или под усадку
Наружные габариты Д х Ш: 4 х 5 м
Парная: 2 х 2 м
Помещений: 3 (парная / моечная / комната отдыха)
описание и комплектация
Баня-4 «Мария» 4 х 6 м
Баня-4 «Мария» 4 х 6 м
от 400 000 руб
срок постройки от 8-ми дней
срок постройки от 8-ми дней
Эта баня строится нашей бригадой у вас на участке
Любую баню можно изменить по вашему пожелнию
Можно изменить вход, расположене окон и дверей, размер или назначение помещений.
Можно изменить вход, расположене окон и дверей, размер или назначение помещений.
Материал на выбор: брус или каркас
Толщина стен и утепление: 100мм или 150мм
Строим: под ключ или под усадку
Наружные габариты Д х Ш: 4 х 6 м
Парная: 2 х 2 м
Помещений: 3 (парная / моечная / комната отдыха)
описание и комплектация
Баня-5 «Ева» 4 х 5 м
Баня-5 «Ева» 4 х 5 м
от 405 000 руб
срок постройки от 5-ти дней
срок постройки от 5-ти дней
Эта баня строится нашей бригадой у вас на участке
Любую баню можно изменить по вашему пожелнию
Можно изменить вход, расположене окон и дверей, размер или назначение помещений.
Можно изменить вход, расположене окон и дверей, размер или назначение помещений.
Материал на выбор: брус или каркас
Толщина стен и утепление: 100мм или 150мм
Строим: под ключ или под усадку
Наружные габариты Д х Ш: 4 х 5 м
Парная: 2 х 2 м
Помещений: 4 (парная / моечная / комната отдыха / санузел)
описание и комплектация
Баня-6 «Виктория» 6 х 4 м
Баня-6 «Виктория» 6 х 4 м
от 415 000 руб
срок постройки от 8-ми дней
срок постройки от 8-ми дней
Эта баня строится нашей бригадой у вас на участке
Любую баню можно изменить по вашему пожелнию
Можно изменить вход, расположене окон и дверей, размер или назначение помещений.
Можно изменить вход, расположене окон и дверей, размер или назначение помещений.
Материал на выбор: брус или каркас
Толщина стен и утепление: 100мм или 150мм
Строим: под ключ или под усадку
Наружные габариты Д х Ш: 6 х 4 м
Парная: 2,2 х 2,5 м
Помещений: 3 (парная / моечная / комната отдыха)
описание и комплектация
Баня-7 «Алиса» 4 х 6 м
Баня-7 «Алиса» 4 х 8 м
от 420 000 руб
срок постройки от 10-ти дней
срок постройки от 10-ти дней
Эта баня строится нашей бригадой у вас на участке
Любую баню можно изменить по вашему пожелнию
Можно изменить вход, расположене окон и дверей, размер или назначение помещений.
Можно изменить вход, расположене окон и дверей, размер или назначение помещений.
Материал на выбор: брус или каркас
Толщина стен и утепление: 100мм или 150мм
Строим: под ключ или под усадку
Наружные габариты Д х Ш: 4 х 8 м
Парная: 2 х 2,3 м
Помещений: 3 (парная / моечная / комната отдыха)
описание и комплектация
Баня-8 «Варвара» 4 х 7 м
Баня-8 «Варвара» 4 х 7 м
от 430 000 руб
срок постройки от 8-ми дней
срок постройки от 8-ми дней
Эта баня строится нашей бригадой у вас на участке
Любую баню можно изменить по вашему пожелнию
Можно изменить вход, расположене окон и дверей, размер или назначение помещений.
Можно изменить вход, расположене окон и дверей, размер или назначение помещений.
Материал на выбор: брус или каркас
Толщина стен и утепление: 100мм или 150мм
Строим: под ключ или под усадку
Наружные габариты Д х Ш: 4 х 7 м
Парная: 2 х 2,5 м
Помещений: 3 (парная / моечная / комната отдыха)
описание и комплектация
Баня-9 «Василиса» 6 х 4 м
Баня-9 «Василиса» 6 х 4 м
от 430 000 руб
срок постройки от 8-ми дней
срок постройки от 8-ми дней
Эта баня строится нашей бригадой у вас на участке
Любую баню можно изменить по вашему пожелнию
Можно изменить вход, расположене окон и дверей, размер или назначение помещений.
Можно изменить вход, расположене окон и дверей, размер или назначение помещений.
Материал на выбор: брус или каркас
Толщина стен и утепление: 100мм или 150мм
Строим: под ключ или под усадку
Наружные габариты Д х Ш: 6 х 4 м
Парная: 2 х 2,5 м
Помещений: 3 (парная / моечная / комната отдыха)
описание и комплектация
Баня-10 «Полина» 6 х 4 м
Баня-10 «Полина» 6 х 4 м
от 550 000 руб
срок постройки от 8-ми дней
срок постройки от 8-ми дней
Эта баня строится нашей бригадой у вас на участке
Любую баню можно изменить по вашему пожелнию
Можно изменить вход, расположене окон и дверей, размер или назначение помещений.
Можно изменить вход, расположене окон и дверей, размер или назначение помещений.
Материал на выбор: брус или каркас
Толщина стен и утепление: 100мм или 150мм
Строим: под ключ или под усадку
Наружные габариты Д х Ш: 6 х 4 м
Парная: 2 х 2,5 м
Помещений: 5 (парная / моечная / мансарда / прихожая / комната отдыха)
описание и комплектация
Баня-11 «Александра» 6 х 6 м
Баня-11 «Александра» 6 х 6 м
от 550 000 руб
срок постройки от 10-ти дней
срок постройки от 10-ти дней
Эта баня строится нашей бригадой у вас на участке
Любую баню можно изменить по вашему пожелнию
Можно изменить вход, расположене окон и дверей, размер или назначение помещений.
Можно изменить вход, расположене окон и дверей, размер или назначение помещений.
Материал на выбор: брус или каркас
Толщина стен и утепление: 100мм или 150мм
Строим: под ключ или под усадку
Наружные габариты Д х Ш: 6 х 6 м
Парная: 2,2 х 2,5 м
Помещений: 3 (парная / моечная / комната отдыха)
описание и комплектация
Баня-12 «Екатерина» 6 х 6 м
Баня-12 «Екатерина» 6 х 6 м
от 560 000 руб
срок постройки от 10-ти дней
срок постройки от 10-ти дней
Эта баня строится нашей бригадой у вас на участке
Любую баню можно изменить по вашему пожелнию
Можно изменить вход, расположене окон и дверей, размер или назначение помещений.
Можно изменить вход, расположене окон и дверей, размер или назначение помещений.
Материал на выбор: брус или каркас
Толщина стен и утепление: 100мм или 150мм
Строим: под ключ или под усадку
Наружные габариты Д х Ш: 6 х 6 м
Парная: 2,5 х 3 м
Помещений: 5 (парная / моечная / прихожая / комната отдыха / санузел)
описание и комплектация
Баня-13 «Татьяна» 6 х 6 м
Баня-13 «Татьяна» 6 х 6 м
от 580 000 руб
срок постройки от 10-ти дней
срок постройки от 10-ти дней
Эта баня строится нашей бригадой у вас на участке
Любую баню можно изменить по вашему пожелнию
Можно изменить вход, расположене окон и дверей, размер или назначение помещений.
Можно изменить вход, расположене окон и дверей, размер или назначение помещений.
Материал на выбор: брус или каркас
Толщина стен и утепление: 100мм или 150мм
Строим: под ключ или под усадку
Наружные габариты Д х Ш: 6 х 6 м
Парная: 2 х 2,5 м
Помещений: 4 (парная / моечная / комната отдыха / мансарда)
описание и комплектация
Баня-14 «Елена» 6 х 7 м
Баня-14 «Елена» 6 х 7 м
от 590 000 руб
срок постройки от 10-ти дней
срок постройки от 10-ти дней
Эта баня строится нашей бригадой у вас на участке
Любую баню можно изменить по вашему пожелнию
Можно изменить вход, расположене окон и дверей, размер или назначение помещений.
Можно изменить вход, расположене окон и дверей, размер или назначение помещений.
Материал на выбор: брус или каркас
Толщина стен и утепление: 100мм или 150мм
Строим: под ключ или под усадку
Наружные габариты Д х Ш: 6 х 7 м
Парная: 2,5 х 2,5 м
Помещений: 5 (парная / моечная / комната отдыха / санузел / прихожая)
описание и комплектация
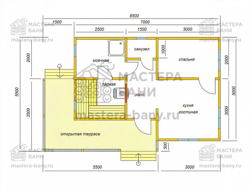
Баня-15 «Евгения» 5 х 8 м
Баня-15 «Евгения» 5 х 8 м
от 610 000 руб
срок постройки от 10-ти дней
срок постройки от 10-ти дней
Эта баня строится нашей бригадой у вас на участке
Любую баню можно изменить по вашему пожелнию
Можно изменить вход, расположене окон и дверей, размер или назначение помещений.
Можно изменить вход, расположене окон и дверей, размер или назначение помещений.
Материал на выбор: брус или каркас
Толщина стен и утепление: 100мм или 150мм
Строим: под ключ или под усадку
Наружные габариты Д х Ш: 5 х 8 м
Парная: 2 х 2,5 м
Помещений: 6 (парная / моечная / кухня-гостинная / санузел / холл / спальня)
описание и комплектация
Баня-16 «Милана» 6 х 6 м
Баня-16 «Милана» 6 х 6 м
от 650 000 руб
срок постройки от 10-ти дней
срок постройки от 10-ти дней
Эта баня строится нашей бригадой у вас на участке
Любую баню можно изменить по вашему пожелнию
Можно изменить вход, расположене окон и дверей, размер или назначение помещений.
Можно изменить вход, расположене окон и дверей, размер или назначение помещений.
Материал на выбор: брус или каркас
Толщина стен и утепление: 100мм или 150мм
Строим: под ключ или под усадку
Наружные габариты Д х Ш: 6 х 6 м
Парная: 2 х 2,5 м
Помещений: 6 (парная / моечная / комната отдыха / санузел / тамбур / мансарда)
описание и комплектация
Баня-17 «Анастасия» 6 х 9 м
Баня-17 «Анастасия» 6 х 9 м
от 730 000 руб
срок постройки от 14-ти дней
срок постройки от 14-ти дней
Эта баня строится нашей бригадой у вас на участке
Любую баню можно изменить по вашему пожелнию
Можно изменить вход, расположене окон и дверей, размер или назначение помещений.
Можно изменить вход, расположене окон и дверей, размер или назначение помещений.
Материал на выбор: брус или каркас
Толщина стен и утепление: 100мм или 150мм
Строим: под ключ или под усадку
Наружные габариты Д х Ш: 6 х 9 м
Парная: 3 х 3 м
Помещений: 5 (парная / моечная / комната отдыха / санузел / тамбу)
описание и комплектация
Баня-18 «Дарья» 6.5 х 9 м
Баня-18 «Дарья» 6.5 х 9 м
от 875 000 руб
срок постройки от 14-ти дней
срок постройки от 14-ти дней
Эта баня строится нашей бригадой у вас на участке
Любую баню можно изменить по вашему пожелнию
Можно изменить вход, расположене окон и дверей, размер или назначение помещений.
Можно изменить вход, расположене окон и дверей, размер или назначение помещений.
Материал на выбор: брус или каркас
Толщина стен и утепление: 100мм или 150мм
Строим: под ключ или под усадку
Наружные габариты Д х Ш: 6.5 х 9 м
Парная: 2,2 х 2,5 м
Помещений: 8 (парная / моечная / большая комната / санузел / холл / тамбур / 2-спальни)
описание и комплектация
Каталог готовых бань с панорамным остеклением
Возможны любые изменения в любом проекте, который размещен на сайте. Также вы можете прислать нам ваш план или проект.
Мобильная баня 6 х 2,3 м
Мобильная баня 6 х 2,3 м
от 429 000 руб
Доставим готовую баню или соберём у вас на участке
В бане уже будет все необходимое для парения:
печь, камни, бак для нагрева воды, полки, стол и лавочки. Вам нужно только ее затопить.
печь, камни, бак для нагрева воды, полки, стол и лавочки. Вам нужно только ее затопить.
Любую баню можно изменить по вашему пожеланию
Можно изменить вход, размер или назначение помещений. Можно добавить козырек, крыльцо, хозпомещение.
Можно изменить вход, размер или назначение помещений. Можно добавить козырек, крыльцо, хозпомещение.
Материал: брус или каркас (на выбор)
Размер бруса: 90х140 или 140х140или 190х140
Брус: камерной сушки
Длина: 6 метров
Ширина: 2,3 метра
Помещений: 3 (парная, комната отдыха, моечная)
Моечная: есть
Комната отдыха: есть
Топка на улице: можно сделать
описание и комплектация
Мобильная баня 7 х 2,3 м
Мобильная баня 7 х 2,3 м
от 449 000 руб
Доставим готовую баню или соберём у вас на участке
В бане уже будет все необходимое для парения:
печь, камни, бак для нагрева воды, полки, стол и лавочки. Вам нужно только ее затопить.
печь, камни, бак для нагрева воды, полки, стол и лавочки. Вам нужно только ее затопить.
Любую баню можно изменить по вашему пожеланию
Можно изменить вход, размер или назначение помещений. Можно добавить козырек, крыльцо, хозпомещение.
Можно изменить вход, размер или назначение помещений. Можно добавить козырек, крыльцо, хозпомещение.
Материал: брус или каркас (на выбор)
Размер бруса: 90х140 или 140х140или 190х140
Брус: камерной сушки
Длина: 7 метров
Ширина: 2,3 метра
Помещений: 3 (парная, комната отдыха, моечная)
Моечная: есть
Комната отдыха: есть
Топка на улице: можно сделать
описание и комплектация
Мобильная баня 6 х 2,3 м
Мобильная баня 6 х 2,3 м
от 424 000 руб
Доставим готовую баню или соберём у вас на участке
В бане уже будет все необходимое для парения:
печь, камни, бак для нагрева воды, полки, стол и лавочки. Вам нужно только ее затопить.
печь, камни, бак для нагрева воды, полки, стол и лавочки. Вам нужно только ее затопить.
Любую баню можно изменить по вашему пожеланию
Можно изменить вход, размер или назначение помещений. Можно добавить козырек, крыльцо, хозпомещение.
Можно изменить вход, размер или назначение помещений. Можно добавить козырек, крыльцо, хозпомещение.
Материал: брус или каркас (на выбор)
Размер бруса: 90х140 или 140х140или 190х140
Брус: камерной сушки
Длина: 6 метров
Ширина: 2,3 метра
Помещений: 2 (парная, комната отдыха с душем)
Моечная: есть
Комната отдыха: есть
Козырек: есть
Крыльцо: есть
Топка на улице: можно сделать
описание и комплектация
Мобильная баня 7 х 2,3 м
Мобильная баня 7 х 2,3 м
от 444 000 руб
Доставим готовую баню или соберём у вас на участке
В бане уже будет все необходимое для парения:
печь, камни, бак для нагрева воды, полки, стол и лавочки. Вам нужно только ее затопить.
печь, камни, бак для нагрева воды, полки, стол и лавочки. Вам нужно только ее затопить.
Любую баню можно изменить по вашему пожеланию
Можно изменить вход, размер или назначение помещений. Можно добавить козырек, крыльцо, хозпомещение.
Можно изменить вход, размер или назначение помещений. Можно добавить козырек, крыльцо, хозпомещение.
Материал: брус или каркас (на выбор)
Размер бруса: 90х140 или 140х140или 190х140
Брус: камерной сушки
Длина: 7 метров
Ширина: 2,3 метра
Помещений: 2 (парная, комната отдыха с душем)
Моечная: есть
Комната отдыха: есть
Козырек: есть
Крыльцо: есть
Топка на улице: можно сделать
описание и комплектация
В стоимость бани входит всё необходимое, чтобы баней можно было пользоваться сразу после установки
печь, камни для печи, дымоход, полки и трапы и др.
Наши выполненные проекты
Костромская область
Баня 2,3х4,2
— Длина: 4,2 м
— Ширина: 2,3м

Московская область
Баня 2,3х4
— Длина: 4 м
— Ширина: 2,3м

Ленинградская область
Баня 2,3х4
— Длина: 4 м
— Ширина: 2,3м

Тульская область
Баня 2,3х4
— Длина: 4 м
— Ширина: 2,3м

Брянская область
Баня 2,3х6
— Длина: 6 м
— Ширина: 2,3м

Владимирская область
Баня 2,3х4
— Длина: 4 м
— Ширина: 2,3м

Калужская область
Баня 2х3
— Длина: 3 м
— Ширина: 2м

Псковская область
Баня 2,3х7
— Длина: 7 м
— Ширина: 2,3м

Смоленская область
Баня 2,3х5
— Длина: 5 м
— Ширина: 2,3м

Костромская область
Баня 2,3х4
— Длина: 4 м
— Ширина: 2,3м

Псковская область
Баня 2,3х7
— Длина: 7 м
— Ширина: 2,3м

Новгородская область
Баня 2,3х6 и хозблок 2х6м
— Длина: 6 м
— Ширина: 2,3м

Тверская область
Баня 2,3х5
— Длина: 5 м
— Ширина: 2,3м

Ярославская область
Баня 2,2х6
— Длина: 6 м
— Ширина: 2,2м

Московская область
Баня 2,3х5
— Длина: 5 м
— Ширина: 2,3м

Ивановская область
Баня 2,3х4
— Длина: 4 м
— Ширина: 2,3м

Тульская область
Баня 2,3х4
— Длина: 4 м
— Ширина: 2,3м

Вологодская область
Баня 2,3х4
— Длина: 4 м
— Ширина: 2,3м

Ленинградская область
Баня 2,3х4
— Длина: 4 м
— Ширина: 2,3м

Московская область
Баня 2,3х4
— Длина: 4 м
— Ширина: 2,3м

Ивановская область
Баня 2,3х2
— Длина: 2 м
— Ширина: 2,3м

Костромская область
Баня 2,3х4
— Длина: 4 м
— Ширина: 2,3м

Александр Сергеевич Дмитриев
Директор по производству
Александр Сергеевич Дмитриев
Директор по производству
Посмотрите видеоотзывы наших клиентов
деревня Алексеевка, городской округ Чехов, Московская область
Варвара Кузнецова
Баня 2,3х4 с крыльцом
деревня Большие Горки, Наро-Фоминский городской округ, Московская область
Софья Карпова
Баня 2,3х6
Кубинка, Одинцовский городской округ, Московская область
Евгения Балашова
Баня 2,3х4 с крыльцом
село Покровское, Одинцовский городской округ, Московская область
Евгений Черпенко
Баня 2,3х7 с крыльцом
деревня Редькино, Рузский городской округ, Московская область
Валерия и Илья Ковалевы
Баня 2,3х6 с крыльцом
СНТ Ягодка, Дмитров, Московская область
Виталий Аистов
Баня 2,2х6 с террасой
посёлок Зубово, городской округ Клин, Московская область
Александра Яшина
Баня 2,3х6
Хотьково, Сергиево-Посадский городской округ, Московская область
Анна Денисова
Баня 2,3х4
рабочий посёлок Икша, Дмитровский городской округ, Московская область
Максим Петров
Баня 2,3х6 с крыльцом
деревня Новосёлово, городской округ Истра, Московская область
Мария Воробьева
Баня 2,3х5 с крыльцом
рабочий посёлок Фряново, городской округ Щёлково, Московская область
Вадим Жуков
Баня 2,3х5
деревня Губино, Орехово-Зуевский городской округ, Московская область
Диана Сомова
Баня 2,3х6
Доставляем готовую баню к вам на участок
Доставка бани 2,3х4
Доставка бани 2,3х6
Посмотрите видеообзоры наших бань
Баня 2,3х6
Баня 2,3х6
У нас собственное производство мобильных бань
Новгородская область, г.Пестово, ул. Биржа-3
Посещение производства и выставки с понедельника по пятницу с 9:00 до 20:00
заранее обязательно позвоните +7 (966) 999-46-03
Посещение производства и выставки с понедельника по пятницу с 9:00 до 20:00
заранее обязательно позвоните +7 (966) 999-46-03
Готовые бани на отправку
Готовые бани на отправку
Мы являемся прямым производителем профилированного бруса
Приезжайте к нам на производство
Новгородская область, г.Пестово, ул. Биржа-3
Посещение производства и выставки с понедельника по пятницу с 9:00 до 20:00
заранее обязательно позвоните +7 (966) 999-46-03
Посещение производства и выставки с понедельника по пятницу с 9:00 до 20:00
заранее обязательно позвоните +7 (966) 999-46-03
Наше производство
Часто задаваемые вопросы
Можно ли ставить мобильную баню зимой?
Можно, сезонность никак не влияет, бани собираются в теплых ангарах.
Сколько ждать баню?
Срок строительства зависит от размеров бани. В среднем от недели до двух.
Какой срок службы такой бани?
Мобильные каркасные бани или бани из бруса могут похвастаться высокой надежностью. Эти практичные и быстровозводимые сооружения способны прослужить много лет, не доставляя хозяевам лишних проблем и забот. Если баня была построена по технологии без допущения каких-либо ошибок, то срок ее службы составит 30 лет.
Какой фундамент делаете?
В комплектацию всех наших бань входит опорно столбчатый фундамент из блоков 20х20х40. Количество блоков зависит от размера бани. Для перевозной бани фундамента на бетонных блоках будет достаточно. Для бань больших размеров мы советуем свайно-винтовой фундамент.
На что ставится баня? Нужен фундамент? Как быть, если почва торфянистая, весной подходит вода.
Ставим на пеноблок, фундамент не нужен. Если болотистая местность, то на винтовые сваи.
Сколько нужно оплатить сразу для заказа?
Обычно: Предоплата 40%. После установки на участке 60%.
Является ли мобильная баня недвижимостью с оформлением?
Наша баня не является недвижимостью и оформлять ее как постройку не нужно!
Площадку с фундаментом не нужно планировать?
Под мобильную баню не нужно планировать площадку и монтировать фундамент, что существенно снижает расходы, ведь фундамент это 1/4 цены сооружения.
Можно поменять планировку бани по индивидуальному проекту?
Можно, изменения, которые не влекут за собой увеличения размеров бани и увеличения парного отделения абсолютно бесплатны!
Понравился проект на другом сайте, сможете сделать расчет стоимости?
Да, конечно! Отправьте нам ссылку на интересующий вас проект, мы оперативно сделаем для вас расчет стоимости.
Можно ли поставить баню на свой фундамент?
Да, это возможно! Детали обсуждаются с каждым клиентом индивидуально.













































































































